|
|
|
 |
HOME> Product > Safety Guardrail |
|
|
 |
|
 |
|
|
Safety Guardrail |
|
|
|
|
Safety Guardrail Installation Standard
|
|
* Height - More than 90cm.
* Width between Guardrail columns - Less than 2m.
* Height of Middle rail - More than 0.45m.
* Height of the width block - More than 0.1m
* Must be able to withstand weights of more than 100kg (Horizontal Applied Weight 120kg.
Changes in
dimensions must be less than 100mm) |
|
|
|
|
Balcony Safety Guardrails |
 |
|
- Used exclusively for balconies.
- Used to increase worker efficiency
and prevent falls.
|
|
|
Stairway - Slab Safety Guardrail |
 |
|
- Used for stairways, slabs, and balconies.
- Minimized Guardrail, Easy to install and uninstall.
- Concluded with a U shaped bolt. |
|
|
|
Beam Guardrail |
 |
|
|
The beam Guardrail is a two way supportive Guardrail used to place safety ropes during the construction of the steel frames. This Guardrail is strong against external impacts and is also used as a supportive rail during H beam constructions. |
|
|
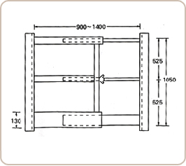
Elevator Safety Guardrail |
 |
|
Also called the E/V opening protection zone,
It is used to prevent worker from falling.
Increases worker efficiency by providing the
worker with security. |
|
|
|
|
|
|
 |
|
 |
|
|
|