|
System scaffoldings consist of vertical posts, horizontal ledger posts, U-head jacks and jack bases.
They are props to support not only the underground structures, but also to support building structures
combining residences and stores, engineering works, bridge constructions, whose highly elevated structures
demand props for supporting. In order to supplement the weak points of the previous scaffoldings and
shoring/props that can not shore up the highly elevated structures, the system scaffoldings are well
organized in modern technology, providing you economical and security advantages in installing and
dismantling. |
|
|
|
|
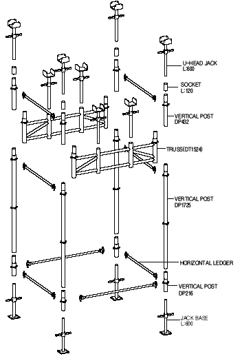
Vertical Post |
|
Vertical posts are main the members transferring the upper part load of a structure to the lower part of the structure. |
|
|
| Model |
|
Kg |
|
mm |
|
| P25 |
|
12.0 |
|
2,588 |
|
| P17 |
|
8.3 |
|
1,725 |
|
| P12 |
|
6.2 |
|
1,291 |
|
| P08 |
|
4.4 |
|
863 |
|
| P04 |
|
3.0 |
|
432 |
|
| P02 |
|
2.0 |
|
216 |
|
|
|
 |
|
|
Horizontal Post |
|
Horizontal ledger posts are the members installed horizontally to prevent the vertical posts from being curved. |
|
|
| Model |
|
Kg |
|
mm |
|
mm |
|
| H18 |
|
5.0 |
|
1,829 |
|
1,725 |
|
| H15 |
|
4.3 |
|
1,524 |
|
1,463 |
|
| H12 |
|
3.5 |
|
1,219 |
|
1,158 |
|
| H09 |
|
2.8 |
|
914 |
|
853 |
|
| H06 |
|
2.1 |
|
610 |
|
549 |
|
| H03 |
|
1.3 |
|
305 |
|
244 |
|
|
|
 |
|
|
Diagonal Bracing |
|
Diagonal bracings are the members to connect and fasten between horizontal ledger posts, and also between vertical posts in order to endure the lateral force against the props |
|
|
| Model |
|
A(mm) |
|
B(mm) |
|
Weight(Kg) |
|
L(mm) |
|
| B1715 |
|
1,725 |
|
1,524 |
|
5.3 |
|
2,139 |
|
| B1712 |
|
1,725 |
|
1,219 |
|
5.0 |
|
1,974 |
|
| B1709 |
|
1,725 |
|
914 |
|
4.7 |
|
1,845 |
|
| B1215 |
|
1,291 |
|
1,524 |
|
4.6 |
|
1,807 |
|
| B1212 |
|
1,291 |
|
1,219 |
|
4.2 |
|
1,609 |
|
| B1209 |
|
1,291 |
|
914 |
|
3.8 |
|
1,447 |
|
| B0815 |
|
863 |
|
1,524 |
|
4.1 |
|
1,530 |
|
| B0812 |
|
863 |
|
1,219 |
|
3.6 |
|
1,290 |
|
| B0809 |
|
863 |
|
914 |
|
3.4 |
|
1.082 |
|
|
|
 |
|
|
U-head Jack |
|
U-head jacks are adjustable props installed at the vertical posts upper part of system scaffoldings, helping the tubes connect to the system scaffoldings. |
|
|
| Model |
|
Kg |
|
mm |
|
| U-Head |
|
5.4 |
|
600 |
|
|
|
 |
|
|
Jack Base |
|
Jack bases are adjustable props installed at the lower part of system scaffoldings, helping the vertical posts stay stable horizontally and vertically. |
|
|
| Model |
|
Kg |
|
mm |
|
| Jack Base |
|
5.0 |
|
600 |
|
|
|
 |
|
|
Tube |
|
Tubes are the members installed at right angles against joists to shore up the joists and to transfer the upper part load down to lower part. |
|
|
| Model |
|
Spec. |
|
| Tube |
|
75 * 125 * 3t |
|
|
|
 |
|
|
Socket |
|
Sockets are used to install the U-head after being combined into the upper insert part of the vertical posts. |
|
|
| Model |
|
Kg |
|
mm |
|
| Socket |
|
0.5 |
|
120 |
|
|
|
 |
|
|
Truss |
|
Trusses are used at the lower part of the structures or where main props are difficult to build. |
|
|
| Model |
|
Kg |
|
mm |
|
| Truss |
|
18 |
|
1,524 |
|
|
|
 |
|